21 Regent Street - Case Study

Project:

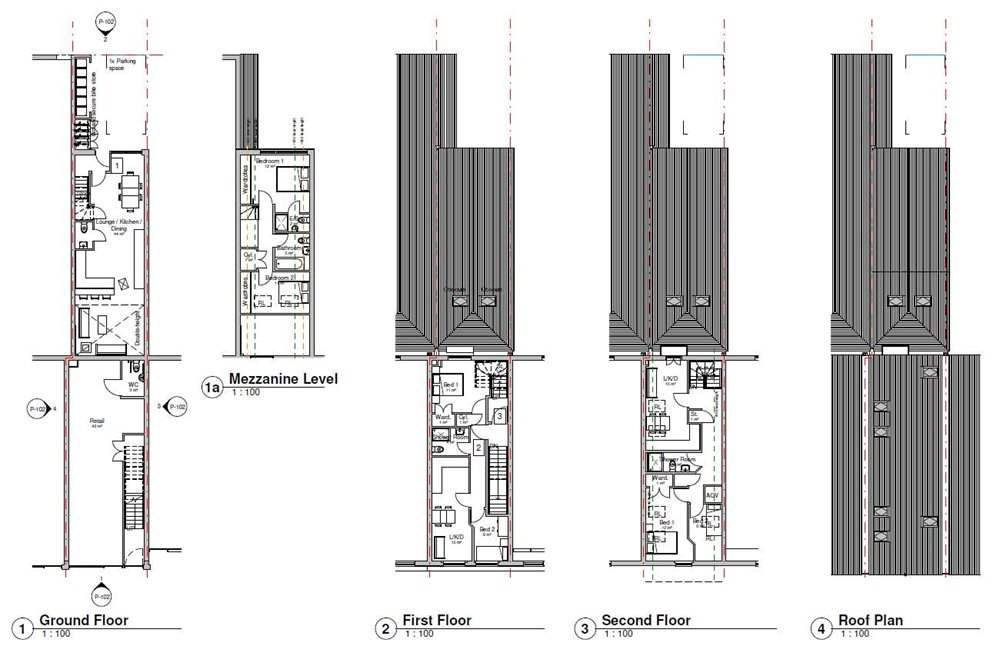
Extension and conversion of high street retail unit to 2 flats and 1 townhouse

Location:

Kingswood, Bristol

In Brief:

The 21 Regent Street architecture project involved the extension and conversion of an existing high street retail unit with disused storage and offices above.

The property was extended to the rear to create a 2-bedroom family town house with parking while the upper floors of main building were converted to create two 2-bedroom flats. The retail unit on the ground floor was altered and retained to help support the viability of the high street.

Minimal alterations were made to the front of the building so as to maintain the look and feel of the traditional high street while the ‘back mews’ house to the rear presents a striking, modern appearance.

Reusing the existing structure played an important role in keeping the costs of works manageable as well as ensuring viability of this project as a commercial undertaking.

Easton Bevins worked closely with the developer, the local estate agents, a specialist planning consultant and local building control in order to ensure a smooth process throughout as well as designs that deliver on local needs, regulatory requirements and reputation for high quality.

View all case studies

21 Regent Street image
21 Regent Street image 21 Regent Street image 21 Regent Street image
21 Regent Street image 21 Regent Street image

Get in touch

For more information please complete the enquiry form below and a member of our team will be in touch.

Fields marked * are required.

Request a callback 0117 942 7876

Want to discuss your requirements?

Complete this form to request a callback and we’ll be in touch.

Working hours Mon - Fri, 9am to 5pm