Creating the perfect family home - Case Study

Project:

House extension

Location:

Westbury-on-Trym, Bristol

In Brief:

Our client had purchased a large, detached house located in a quiet cul-de-sac in Westbury-on-Trym, Bristol. A couple with young children, they wanted to develop the house to create their dream family home.

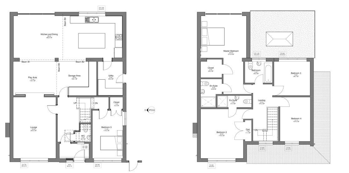
A light and airy four-bed property, with a large garden backing onto woodland, the house has the makings of a wonderful family home. However, the interior is rather dated, and the layout not well suited to family living.

We spent time with our client discussing their aspirations, and a budget for the project. Then developed designs to evolve the interior space to better meet their needs, and a plan that would allow our client to achieve their goal while adhering to their budget. This resulted in a two-stage project, with clear plans drawn up for each phase.

A staged project to deliver planned build on budget   

Phase one includes a ground floor extension to the rear of the building, creating a large family-friendly space with a playroom for the children and storage for their toys and games. The playroom connects to the kitchen/dining room, making it easy to keep an eye on the children. There is a lounge area, a place for the grown-ups to relax. We also proposed converting the garage into a guest bedroom, providing extra space for visiting friends and family to stay over.

Phase two includes a second floor extension and reconfiguring the upstairs space to create a fabulous new master bedroom with a floor-to-ceiling window that looks out over the woodland, as well as a walk-in wardrobe and shower room.

Too good to wait – lets go for it!

Doing the work in two phases would allow our client to achieve immediate benefits from the ground floor extension, then complete the second-floor extension, with that fabulous master bedroom, at a later date – thus spreading the financial load.

However, we are delighted to report that they were so taken with the plans that they decided to go ahead with both phases straight away.

New beginnings in the new year

Planning permission has been approved, so we can now get Building Control approval ready to start construction. We are looking to start work in the new year, leaving the family undisturbed over the busy Christmas period. They are really excited to progress with this project which will provide an extended, new-look home with space for the children to play, and take full advantage of the beautiful views over their lovely garden and woodland beyond.

View all case studies

Creating the perfect family home image
Creating the perfect family home image Creating the perfect family home image Creating the perfect family home image Creating the perfect family home image
Creating the perfect family home image

Get in touch

For more information please complete the enquiry form below and a member of our team will be in touch.

Fields marked * are required.

Request a callback 0117 942 7876

Want to discuss your requirements?

Complete this form to request a callback and we’ll be in touch.

Working hours Mon - Fri, 9am to 5pm