Extending and reconfiguring to create a more useful, liveable space - Case Study

Project:

House extension

Location:

Birmingham

In Brief:

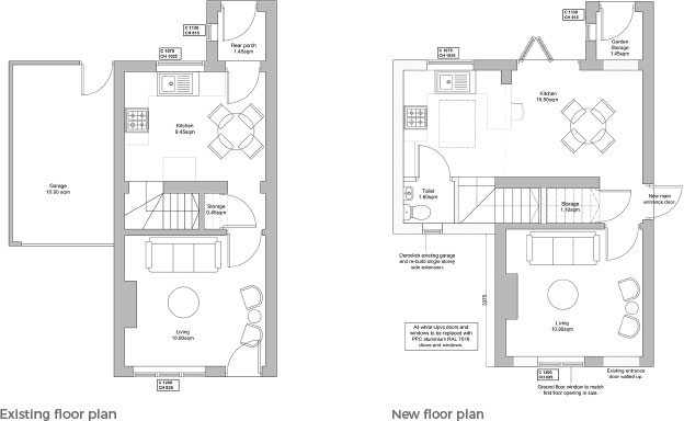
Our client had purchased a house that they were keen to extend and renovate to create a more useful and live-able space. The house has a garage to the side, and the original plan was to convert this to create a bigger kitchen/diner.

Our client had a clear idea of what they wanted to achieve; we worked with them to help realise their vision, while offering advice and recommendations that would enhance the final outcome.

Delivering value from the get-go

Our client’s initial intention was to convert the garage. Knowing the typical challenges associated with converting this type of structure we recommended demolishing and replacing it with a new construction, with better foundations. We advised that this approach would work out to be both quicker, and more cost-effective for our client. In addition, a more solid structure, with better foundations, would make it possible to further extend the property in the future by adding a second storey above the new ground floor building, thus delivering greater long-term value.

Improving and enhancing interior features

During the planning phase, we highlighted the issue with the extreme incline to the existing staircase which made it both impractical and difficult to use. We advised our client that creating a side extension would provide the opportunity to replace the staircase with one with a much gentler, more gradual incline. We also suggested other ways of taking full advantage of the extension to achieve the greatest possible additional usable space.

Getting things ready to progress to next stage

Since our initial discussions, architectural drawings have been created, approved, and submitted for planning approval. Once approval has been granted, we intend to discuss and agree timings for the next phase of the project including dealing with building regulations and planning the building work.

With you every step of the way

We will be overseeing this project from start to finish including creating the initial designs, handling planning approval, contracting builders, and coordinating the project throughout. Our involvement will help ensure both the quality of the building work and timely delivery of the finished project.

Having a team of construction experts at our disposal is extremely helpful, allowing us to cover every angle of the work for the project. Our in-house surveyors conducted a level three condition survey on the building to assess structural cracks and roof issues, allowing us to ensure these could be addressed before starting on the extension.

View all case studies

Extending and reconfiguring to create a more useful, liveable space image
Extending and reconfiguring to create a more useful, liveable space image Extending and reconfiguring to create a more useful, liveable space image
Extending and reconfiguring to create a more useful, liveable space image

Get in touch

For more information please complete the enquiry form below and a member of our team will be in touch.

Fields marked * are required.

Request a callback 0117 942 7876

Want to discuss your requirements?

Complete this form to request a callback and we’ll be in touch.

Working hours Mon - Fri, 9am to 5pm