New private dwelling - Case Study

Project:

New private dwelling

Location:

11 Brighton Mews, Clifton, Bristol, BS8

In Brief:

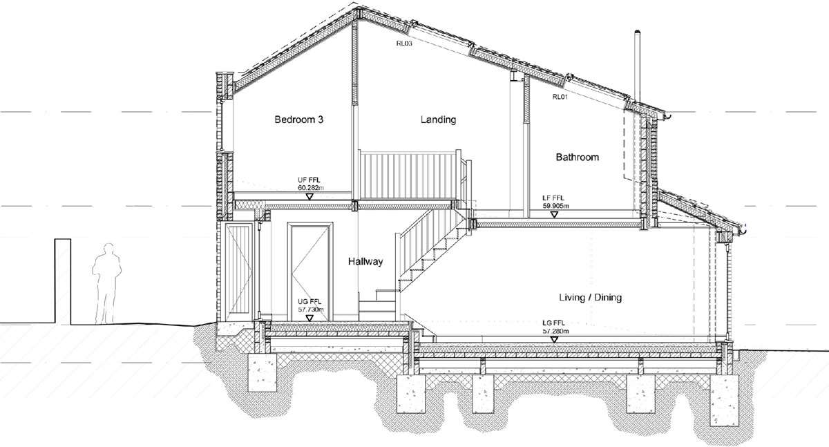
Situated in the desirable Clifton area of Bristol, less than 1km from the City Centre and within The Whiteladies Road Conservation Area, lies a small backland development site which had planning approval for a mews house.

Easton Bevins was appointed to progress this approval through both Building Regulations and construction phases.

The restrictive nature of the site, bounded on three sides by neighbouring buildings and gardens, with the fourth fronting a narrow, single track road, made technical design flair and problem solving a necessity in providing successful construction solutions.

Internal layout improvements to the approved scheme were implemented to satisfy current Building Regulations and modern day technologies such as a domestic sprinkler system were employed to overcome escape issues inherent within this type of project.

Particular attention was given to the junction with the neighbouring building which, due to being built straddling the boundary line, required careful design consideration and close liaison with the party wall surveyor.

View all case studies

New private dwelling image
New private dwelling image New private dwelling image New private dwelling image
New private dwelling image

Get in touch

For more information please complete the enquiry form below and a member of our team will be in touch.

Fields marked * are required.

Request a callback 0117 942 7876

Want to discuss your requirements?

Complete this form to request a callback and we’ll be in touch.

Working hours Mon - Fri, 9am to 5pm